Back to Portfolio

Government

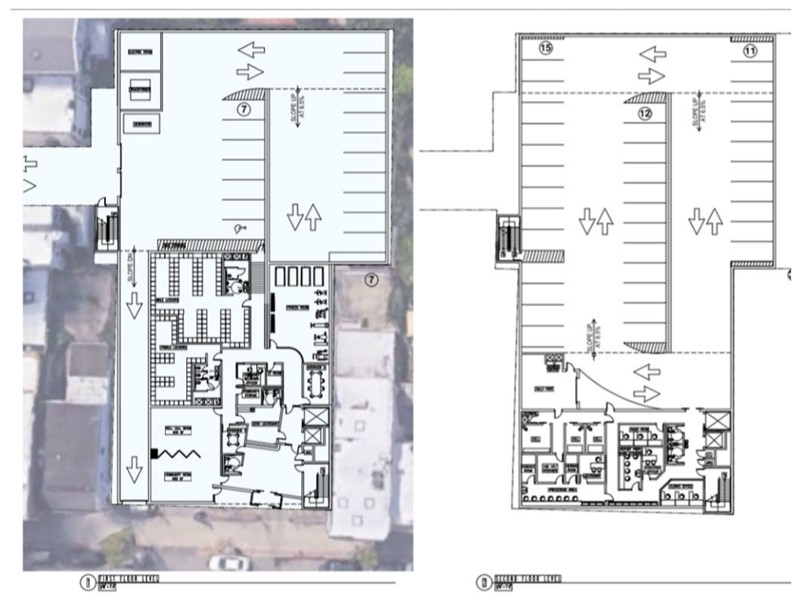
North Precinct Police Station, Jersey City, NJ

Size: 30,000 sf, with 175 car multi-level parking garage.
New Construction
Stories: 6
Services: Structural Engineering

  • More Views